新築一戸建て
新築戸建 西堤2(高井田駅) 3180万円
Property
| 価格 | 3180万円 |
|---|---|
| 所在地 | 大阪府東大阪市西堤2 |
| 交通 | 地下鉄中央線「高井田」歩11分 JRおおさか東線「高井田中央」歩12分 地下鉄中央線「長田」歩17分 |
| 学校区 | 東大阪市立西堤小学校:徒歩5分(400m) 東大阪市立新喜多中学校:徒歩12分(910m) |
物件の特徴
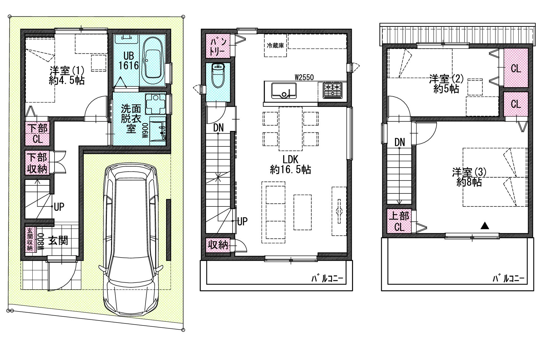
◇LDK約16.5帖×対面式キッチン採用
◇キッチンにパントリー付き♪
◇ゆったり8帖の洋室!
◇全居室収納付き!居住スペース広々
◇階段の上部・下部ともに収納として有効活用
◇2階・3階にバルコニー設置
◇キッチンにパントリー付き♪
◇ゆったり8帖の洋室!
◇全居室収納付き!居住スペース広々
◇階段の上部・下部ともに収納として有効活用
◇2階・3階にバルコニー設置
■周辺施設充実
・ファミリーマート西堤本通西店:徒歩6分(422m)
・ツルハドラッグ東大阪西堤店:徒歩10分(794m)
・幼保連携型認定こども園むぎの穂保育園:徒歩4分(254m)
・西堤幼稚園:徒歩5分(391m)
・東大阪長田郵便局:徒歩10分(732m)
内装色や仕様はお客様のお好みで選択可能です♪
【ご見学について】
◆◇物件即日ご案内させていただくことが可能です(20時まで)
◆◇豊富な経験と情報量でお客様第一のご提案をさせていただきます。
◆◇【送迎可】ご自宅や最寄り駅から物件まで無料送迎が可能です。
質問などお気軽にお問合せください♪
弊社フリーダイヤル→0120-529-115
・ファミリーマート西堤本通西店:徒歩6分(422m)
・ツルハドラッグ東大阪西堤店:徒歩10分(794m)
・幼保連携型認定こども園むぎの穂保育園:徒歩4分(254m)
・西堤幼稚園:徒歩5分(391m)
・東大阪長田郵便局:徒歩10分(732m)
内装色や仕様はお客様のお好みで選択可能です♪
【ご見学について】
◆◇物件即日ご案内させていただくことが可能です(20時まで)
◆◇豊富な経験と情報量でお客様第一のご提案をさせていただきます。
◆◇【送迎可】ご自宅や最寄り駅から物件まで無料送迎が可能です。
質問などお気軽にお問合せください♪
弊社フリーダイヤル→0120-529-115
物件概要
| 土地面積 | 50.35㎡ |
|---|---|
| 建物面積 | 90.95㎡ |
| 間取り | 3LDK |
| 築年月 | 契約後約6ヶ月 |
| 総戸数 | 1戸 |
| 建ぺい率 | 70% |
| 容積率 | 200% |
| 地目 | 宅地 |
| 接道方向/幅員 | 東側約4m |
| 用途地域 | 第一種住居地域 |
| 取引形態 | 仲介 |
| 状況 | 未完成 |
| 引渡 | 相談 |
| その他 | 特徴ピックアップ フラット35・S適合証明書 / フラット35Sに対応 / 2沿線以上利用可 / システムキッチン / 浴室乾燥機 / 陽当り良好 / 全居室収納 / LDK15畳以上 / シャワー付洗面化粧台 / 対面式キッチン / ハイルーフ駐車場 / 浴室1坪以上 / 複層ガラス / 温水洗浄便座 / 浴室に窓 / TVモニタ付インターホン / 全居室フローリング / パントリー(食器・食品の収納庫) / 3階建以上 / 全居室複層ガラスか複層サッシ / 都市ガス / 小学校 徒歩10分以内 / 食器洗乾燥機 / スマートキー |
| 設備 | 設備:公営水道、本下水、都市ガス、駐車場:車庫 |