新築戸建 西難波町3(出屋敷駅) 3180万円

PROPERTY INFO

新築一戸建て

新築戸建 西難波町3(出屋敷駅) 3180万円

Property

価格 3180万円
所在地 兵庫県尼崎市西難波町3
交通 阪神本線「出屋敷」歩11分
阪神本線「尼崎センタープール前」歩20分
阪神本線「尼崎」歩21分
学校区 尼崎市立難波小学校:徒歩7分(530m)
尼崎市立中央中学校:徒歩18分(1400m)

物件の特徴

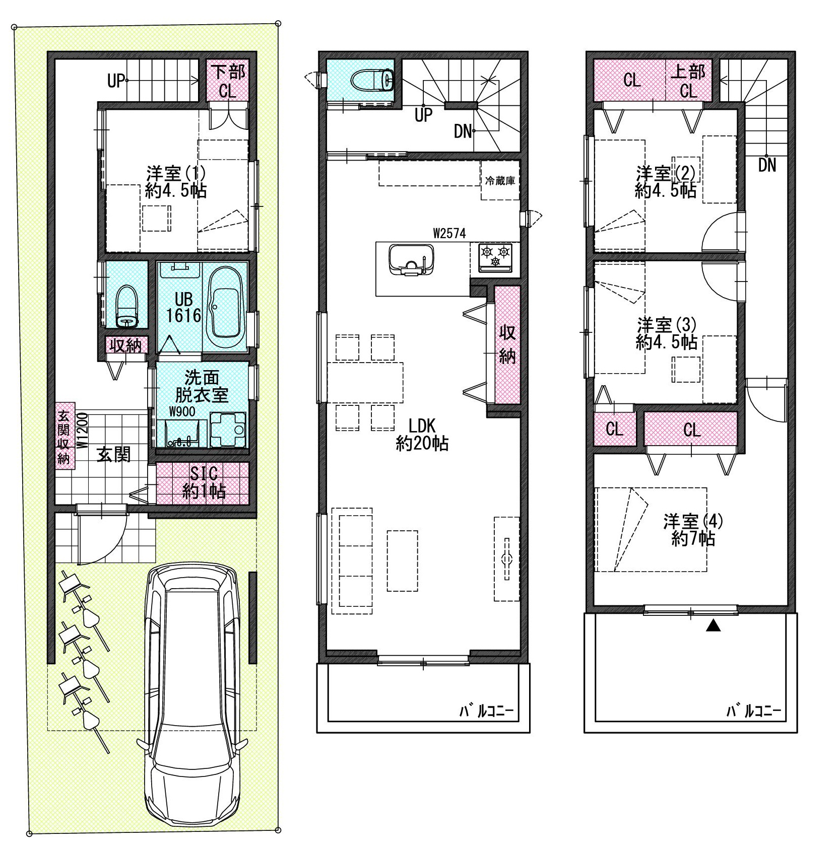
◇LDK約20帖×対面式キッチン採用
◇収納豊富な4LDK住宅
◇LDKに収納あり!
◇玄関にSICあり!
◇全居室収納!居住スペースが広々♪
◇階段の上部・下部ともに収納として有効活用
◇2階・3階にバルコニー設置
◇買い物施設充実
■周辺環境充実
・コノミヤ尼崎店:徒歩6分(407m)
・スーパーオオジ西難波店:徒歩6分(444m)
・ローソン尼崎神田北通七丁目店:徒歩7分(502m)
・ローソンニシイチドラッグ崇徳院店:徒歩7分(520m)
・にじの彩保育園:徒歩6分(480m)
・尼崎西難波郵便局:徒歩2分(142m)

内装色や仕様はお客様のお好みで選択可能です♪

【ご見学について】
◆◇物件即日ご案内させていただくことが可能です(20時まで)
◆◇豊富な経験と情報量でお客様第一のご提案をさせていただきます。
◆◇【送迎可】ご自宅や最寄り駅から物件まで無料送迎が可能です。

質問などお気軽にお問合せください♪
弊社フリーダイヤル→0120-529-115

物件概要

土地面積 65.94㎡
建物面積 113.4㎡
間取り 4LDK
築年月 契約後約6ヶ月
総戸数 1戸
建ぺい率 70%
容積率 200%
地目 宅地
用途地域 第一種中高層住居専用地域
取引形態 仲介
状況 未完成
引渡 相談
その他 特徴ピックアップ
フラット35・S適合証明書 / フラット35Sに対応 / LDK20畳以上 / スーパー 徒歩10分以内 / システムキッチン / 浴室乾燥機 / 全居室収納 / シャワー付洗面化粧台 / 対面式キッチン / ハイルーフ駐車場 / トイレ2ヶ所 / 浴室1坪以上 / 複層ガラス / 温水洗浄便座 / 浴室に窓 / TVモニタ付インターホン / 全居室フローリング / 3階建以上 / 全居室複層ガラスか複層サッシ / 都市ガス / シューズインクローク / 小学校 徒歩10分以内 / 食器洗乾燥機 / スマートキー
設備 設備:公営水道、本下水、都市ガス、駐車場:車庫