中古一戸建て
中古戸建 下島町(萱島駅)
Property
| 価格 | 2780万円 |
|---|---|
| 所在地 | 大阪府門真市下島町 |
| 交通 | 京阪本線「萱島」歩11分 京阪本線「大和田」歩11分 |
| 学校区 | 門真市立四宮小学校:徒歩10分(800m) 門真市立第五中学校:徒歩20分(1600m) |
物件の特徴
◆即入居可
◆リフォーム完成済
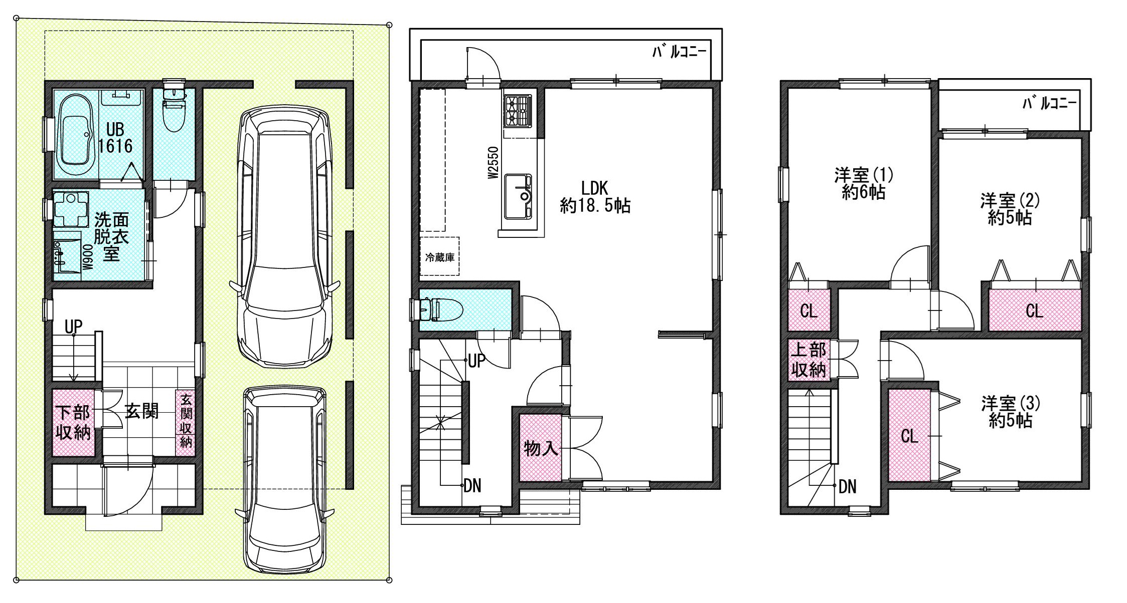
◆LDK約18.5帖×対面式キッチン採用
◆全居室2面採光!日当り・通風良好◎
◆2階・3階に南向きバルコニー設置
◆駐車2台可(車種制限有)
◆前道約4.7m!駐車がラクラク♪
◆リフォーム完成済
◆LDK約18.5帖×対面式キッチン採用
◆全居室2面採光!日当り・通風良好◎
◆2階・3階に南向きバルコニー設置
◆駐車2台可(車種制限有)
◆前道約4.7m!駐車がラクラク♪
■弊社売主のため仲介手数料不要♪
■リフォーム内容■
〇キッチン・洗面台・トイレ新調
〇クロス・フローリング張替
〇洗濯パン・建具取っ手交換
〇ハウスクリーニング 他
■周辺環境充実
・ファミリーマート門真上島町店:徒歩5分(364m)
・コクミンドラッグ京阪萱島駅店:徒歩10分(789m)
・トップワールド萱島店:徒歩12分(895m)
・すずらん幼稚園:徒歩5分(335m)
・門真下島郵便局:徒歩7分(482m)
【ご見学について】
◆◇物件即日ご案内させていただくことが可能です(20時まで)
◆◇豊富な経験と情報量でお客様第一のご提案をさせていただきます。
◆◇【送迎可】ご自宅や最寄り駅から物件まで無料送迎が可能です。
質問などお気軽にお問合せください♪
弊社フリーダイヤル→0120-529-115
■リフォーム内容■
〇キッチン・洗面台・トイレ新調
〇クロス・フローリング張替
〇洗濯パン・建具取っ手交換
〇ハウスクリーニング 他
■周辺環境充実
・ファミリーマート門真上島町店:徒歩5分(364m)
・コクミンドラッグ京阪萱島駅店:徒歩10分(789m)
・トップワールド萱島店:徒歩12分(895m)
・すずらん幼稚園:徒歩5分(335m)
・門真下島郵便局:徒歩7分(482m)
【ご見学について】
◆◇物件即日ご案内させていただくことが可能です(20時まで)
◆◇豊富な経験と情報量でお客様第一のご提案をさせていただきます。
◆◇【送迎可】ご自宅や最寄り駅から物件まで無料送迎が可能です。
質問などお気軽にお問合せください♪
弊社フリーダイヤル→0120-529-115
物件概要
| 土地面積 | 67.09㎡ |
|---|---|
| 建物面積 | 114.61㎡ |
| 間取り | 4LDK |
| 築年月 | 2007年6月 |
| 総戸数 | 1戸 |
| 建ぺい率 | 60% |
| 容積率 | 200% |
| 地目 | 宅地 |
| 接道方向/幅員 | 北側約4.7m |
| 用途地域 | 第一種住居地域 |
| 取引形態 | 売主 |
| 状況 | 空家 |
| 引渡 | 即引渡可 |
| その他 | 特徴ピックアップ 駐車2台可 / 即引渡可 / LDK18畳以上 / 内装リフォーム / システムキッチン / 浴室乾燥機 / 陽当り良好 / 全居室収納 / シャワー付洗面化粧台 / 対面式キッチン / トイレ2ヶ所 / 浴室1坪以上 / 南面バルコニー / フローリング張替 / 温水洗浄便座 / 浴室に窓 / 全居室フローリング / 3階建以上 / 都市ガス / 全室2面採光 / 食器洗乾燥機 |
| 設備 | 公営水道、本下水、都市ガス 駐車場:車庫 |