運営会社: 株式会社サキヤクリエイト
〒540-0013大阪府大阪市中央区内久宝寺町3丁目4−9アルデールヒル内久宝寺
Tel: 0120-529-115 / Fax: 06-6777-6621
受付時間: 9:00~18:00(定休日: 毎週水曜日 第一第三火曜日)
フロアコーティングページはこちら
Follow us
スタッフブログ
会社案内
お問い合わせ
sold
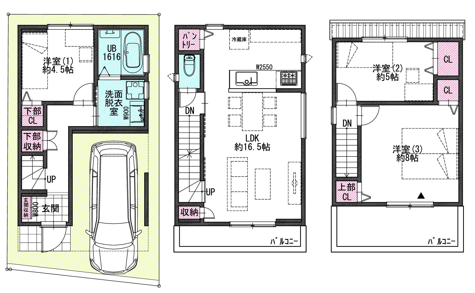
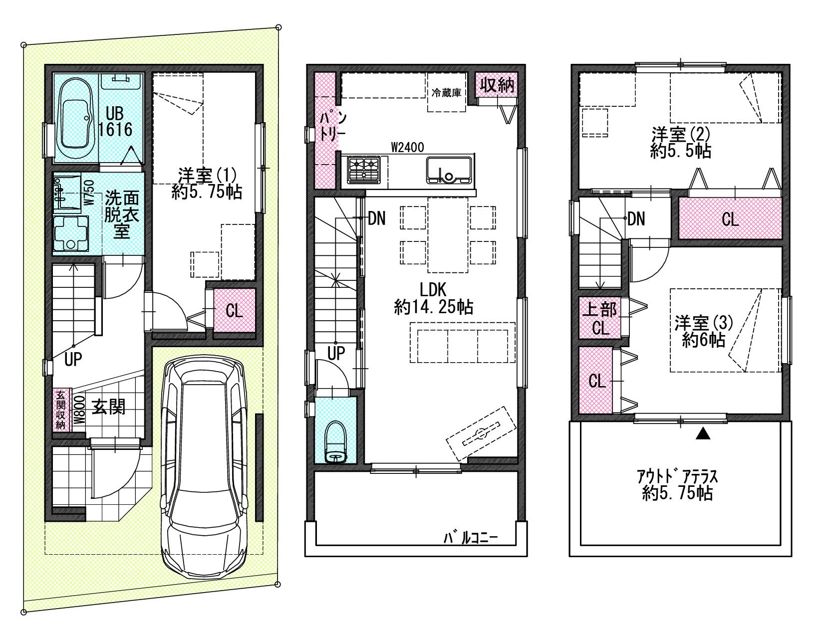
大阪府東大阪市大蓮東
成約
大阪府堺市堺区東雲西町
大阪府吹田市末広町
大阪府東大阪市花園東町
大阪府大阪市東淀川区下新庄
大阪府大阪市淀川区塚本
大阪府大阪市福島区海老江
大阪府大阪市東淀川区淡路
大阪府東大阪市西堤
兵庫県尼崎市大島
兵庫県尼崎市崇徳院